Suunnittelu
Suunnittelu
Rakennesuunnittelu on ollut osa Johacon Oy:n toimintaa jo vuodesta 1995 ja nykymuodossaan omassa toimistossa suunnittelutyötä on tehty vuodesta 2009.
Johacon Oy on erikoistunut teräsrakenteiden suunnitteluun. Tämän lisäksi teemme myös betoni- ja puurakennesuunnitelmia sekä korjaus- että uudisrakennuskohteisiin. Palveluihimme kuuluu myös teräsrakennesuunnitelmien ulkopuolinen tarkastus.
Teräsrakenteiden suunnittelu
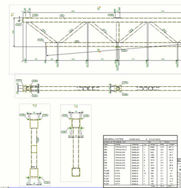
Suunnittelun pohjana ovat 3d-RFEM -ohjelma (Staad, Robot) laskennassa ja Tekla Structures 3d-ohjelma tuoteosamallinnuksessa.
RFEM-laskennalla tehdään mm. rakenteiden murto- ja käyttörajatila-analyysit, sekä tuotetaan tiedot perustus- ja liitoslaskentaa varten. Teemme myös laskentaraportit ja laskentaan liittyvät muut dokumentit.
Tekla Structuresin avulla pystymme tuottamaan tehokkaasti valmistuskuvat konepajoille ja asennuskuvat työmaille. Lisäksi tuoteosamallista saadaan projektinhallintaan liittyvät materiaali- ja asennusosaluettelot, sekä valmistukseen liittyvät sähköiset siirtotiedostot NC-koneille ja SAP-järjestelmille.
Suunnittelupalvelumme toimii kahden henkilön voimin, mutta tarvittaessa hankimme lisäkapasiteettia yhteistyöverkoston kautta.
Työkokemusvuosia teräsrakennesuunnittelusta on kertynyt jo vuodesta 1995. 3d-mallinnuksesta on suunnittelijoillamme kokemusta vuodesta 1998, mutta piirustuslauta-aikakausi on myös koettu.
Normit ja pätevyydet
Pääasiallisesti käytössämme on EN-standardit ja RakMk. Meillä on kokemusta myös Venäjän SNIP-, Amerikan AISC (LRFD)- ja Ruotsin BSK-standardeista.
Meillä on FISE:n myöntämä vaativan luokan teräsrakennesuunnittelun pätevyys.
Ohjelmistot
Tekla Structures (teräs), RFEM, AutoCAD, MS Office, Adobe, (Ruukin, Hiltin mitoitusohjelmat).
Referenssejä
Muutamia esimerkkejä uusimmista kotimaisista ja kansainvälisistä kohteista, joihin on jäänyt suunnittelijoidemme "kädenjälki":
Kauppakeskuksia
- Sastamala 2016, >290 tonnia terästä; teräsrunkosuunnittelua.
- Lahti 2010-2011, >1000 tonnia terästä; teräsrunkosuunnittelua.
Voimalaitoksia
- Saksa 2013, >90 tonnia terästä; teräsrunkosuunnittelua.
- Eesti 2011-2012, >4000 tonnia terästä; päärungon konsepti- ja toteutussuunnitteluvaiheen teräsrunkosuunnittelua.
Koulu- ja opistorakennuksia
- Kerava 2015, päärungon liittopilareiden valmistus- ja asennussuunnittelua.
- Tampere 2013, >700 tonnia terästä; teräsrunkosuunnittelua.
Urheiluareenoita / -halleja
- Tukholma 2011, >450 tonnia terästä; sekundääriristikoiden (13 m-45 m) teräsrunkosuunnittelua.
- Espoo 2009-2010, 3600 m2; teräs- ja liimapuurakenteiden suunnittelua.
Useita aikaisempia kohteita Suomessa, Euroopassa, Amerikassa, Afrikassa, Venäjällä
